Blömker! Frisch sanierte 2-5 Raum Wohnung in Gladbeck-Mitte!

45964 Gladbeck, Etagenwohnung zur Miete

Kontaktdaten

Objektdaten

  • Objekt ID
    4350
  • Objekttypen
    Etagenwohnung, Wohnung
  • Adresse
    (Mitte)
    45964 Gladbeck
  • Etage
    2
  • Etagen im Haus
    4
  • Wohnfläche ca.
    70 m²
  • Nutzfläche ca.
    6 m²
  • Zimmer
    2
  • Schlafzimmer
    1
  • Badezimmer
    1
  • Wesentlicher Energieträger
    Gas
  • Baujahr
    1926
  • Zustand
    gepflegt
  • Verfügbar ab
    sofort
  • Betriebskosten brutto
    110,00 EUR
  • Kaution
    1.800,00 EUR
  • Kaltmiete
    600,00 EUR
  • Heizkosten netto
    140,00 EUR
  • Heizkosten
    140,00 EUR
  • Warmmiete
    850,00 EUR

Ausstattung / Merkmale

  • Badewanne
  • Dusche
  • Fliesenboden
  • Gartennutzung
  • Tageslichtbad
  • Teilunterkellert
  • Wasch-/Trockenraum

Energieausweis

  • Energieausweistyp
    Bedarfs­ausweis
  • Ausstellungsdatum
    ab dem 1.5.2014
  • Gültig bis
    18.11.2035
  • Gebäudeart
    Wohngebäude
  • Baujahr lt. Energieausweis
    2025
  • Primärenergieträger
    ERDGAS_LEICHT
  • Endenergie­bedarf
    154,40 kWh/(m²·a)
  • Energie­effizienz­klasse
    E
0 25 50 75 100 125 150 175 200 225 250+ H G F E D C B A A+ H G F E D C B A A+ Endenergiebedarf 154,40 kWh/(m²·a)

Objekt­beschreibung

Beschreibung

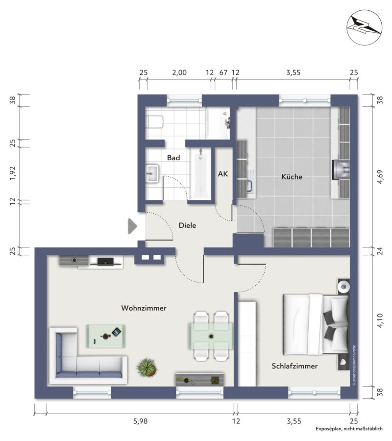
Diese frisch sanierte 2,5-Raum-Wohnung befindet sich im 2. Obergeschoss eines gepflegten Mehrfamilienhauses mit drei Wohnungen. Das Badezimmer verfügt sowohl über eine Dusche als auch über eine Badewanne, welche zu entspannenden Momenten einlädt.

Aufteilung:
Wohnzimmer, Schlafzimmer, Küche, Badezimmer, Abstellraum, Diele.

Die genaue Aufteilung können Sie dem Grundriss entnehmen.

Ausstattung

Heizungsart: Gasheizung
Warmwasseraufbereitung über Durchlauferhitzer.

Innentüren und Zargen in Weiß.
Kunststofffenster in Weiß.

Bodenbelag:
Fliesen in Anthrazit im Badezimmer, Vinyl in den übrigen Räumen.

Badezimmer, mit Dusche, Badewanne, WC, Waschbecken und Fenster.
Bodenfliesen in Anthrazit, Wandfliesen in Weiß, Sanitäranlagen in Weiß.

Internetgeschwindigkeit bis zu 1.000 MBit/s.

Sonstige Informationen

Zu der Wohnung gehört ein privater Kellerraum.

Es gibt einen gemeinschaftlichen Wasch- und Trockenkeller in welchem Sie Ihre Waschmaschine unterbringen können.

Die Warmmiete beträgt insgesamt 850 € und teilt sie wie folgt auf:
Kaltmiete 600 €
Betriebskosten 110 €
Heizkosten 140 €

Über unser Exposé haben Sie die Möglichkeit, die Wohnung zunächst in einer umfassenden virtuellen Besichtigung zu erkunden. Im Anschluss vereinbaren wir gerne einen persönlichen Besichtigungstermin vor Ort.

Lage

Die Wohnung befindet sich in einer gepflegten und ruhigen Lage von Gladbeck – ideal für Paare oder Alleinstehende, die Wert auf ein angenehmes Wohnumfeld und eine gute Infrastruktur legen. Der Stadtteil überzeugt durch seine Nähe zur Natur, ein ausgewogenes Freizeitangebot und eine hervorragende Verkehrsanbindung an das Ruhrgebiet.

Im direkten Umfeld finden sich zahlreiche Einkaufsmöglichkeiten für den täglichen Bedarf. Das moderne Zurheide Center Gladbeck bietet ein vielfältiges Angebot an Lebensmitteln und Feinkost. Auch Apotheken, Bäckereien und Banken sind bequem zu Fuß erreichbar. Für größere Einkäufe oder einen entspannten Stadtbummel lädt das CityCenter Gladbeck mit seinen zahlreichen Fachgeschäften und Cafés zum Verweilen ein.

Nur wenige Minuten entfernt liegt das beliebte Naherholungsgebiet Wittringer Wald mit dem gleichnamigen Wasserschloss – ein idyllischer Ort für Spaziergänge, Fahrradtouren oder entspannte Stunden im Grünen. Hier finden sich auch Freizeitangebote wie Minigolf oder Bootsverleih, die das Wohnumfeld besonders attraktiv machen.

Die Verkehrsanbindung ist hervorragend: Über die A2 erreicht man in kurzer Zeit die umliegenden Städte Essen, Gelsenkirchen, Bottrop und Oberhausen. Auch mit dem öffentlichen Nahverkehr ist man flexibel unterwegs – mehrere Buslinien, unter anderem an der Haltestelle Wittringer Straße, gewährleisten eine bequeme Anbindung an die Innenstadt und benachbarte Städte.

Insgesamt bietet die Lage der Wohnung eine gelungene Kombination aus ruhigem Wohnen, urbaner Nähe und Freizeitkomfort – perfekt für Menschen, die den harmonischen Ausgleich zwischen Aktivität und Erholung suchen.

Bitte akzeptiere Marketing-Cookies um die Google Map zu sehen.

Die dargestellte Position der Immobilie ist nur eine ungefähre Angabe.

Direktanfrage

 SSL-verschlüsselt