Drucken

Blömker! Ein Traum für Kapitalanleger: Fünf Gewerbe- und zwei Wohneinheiten in Gladbeck-Zweckel!

https://bloemker-immobilien.de/immobilien/haus-mehrfamilienhaus-in-gladbeck-kaufen-3434/
Titelbild

Objektdaten

  • Objekt ID
    3434
  • Objekttypen
    Haus, Mehrfamilienhaus
  • Adresse
    (Zweckel)
    45966 Gladbeck
  • Etagen im Haus
    2
  • Wohnfläche ca.
    149,75 m²
  • Grund­stück ca.
    812 m²
  • Nutzfläche ca.
    396,06 m²
  • Vermietbare Fläche ca.
    545,81 m²
  • Wohneinheiten
    2
  • Balkone
    1
  • Terrassen
    1
  • Wesentlicher Energieträger
    Öl
  • Baujahr
    1926
  • Zustand
    gepflegt
  • Status
    vermietet
  • Verfügbar ab
    sofort
  • X-fache Miete
    10,56
  • Mieteinnahmen (Ist)
    89.922,00 EUR pro Jahr
  • Mieteinnahmen (Soll)
    96.642,00 EUR pro Jahr
  • Kaufpreis
    950.000 EUR
  • Käufer­provision
    3,57 % inkl. 19 % MwSt. vom Verkaufspreis

Ausstattung / Merkmale

  • Balkon
  • Gäste-WC
  • Gewerblich nutzbar
  • Keller
  • Terrasse

Energieausweis

  • Energieausweistyp
    Bedarfs­ausweis
  • Ausstellungsdatum
    ab dem 1.5.2014
  • Gültig bis
    14.10.2034
  • Gebäudeart
    Wohngebäude
  • Baujahr lt. Energieausweis
    2001
  • Primärenergieträger
    Öl
  • Endenergie­bedarf
    544,50 kWh/(m²·a)
0 25 50 75 100 125 150 175 200 225 250+ H G F E D C B A A+ H G F E D C B A A+ Endenergiebedarf 544,50 kWh/(m²·a)

Objekt­beschreibung

Beschreibung

Zum Kauf steht ein charmantes Wohn- und Geschäftshaus im beliebten Gladbeck, Ortsteil Zweckel. Dieses gepflegte Gebäude, das im Jahr 1926 errichtet wurde, erstreckt sich über zwei Etagen und bietet sowohl unternehmerischen als auch wohnlichen Raum, welcher ideal für Investoren ausgelegt ist.

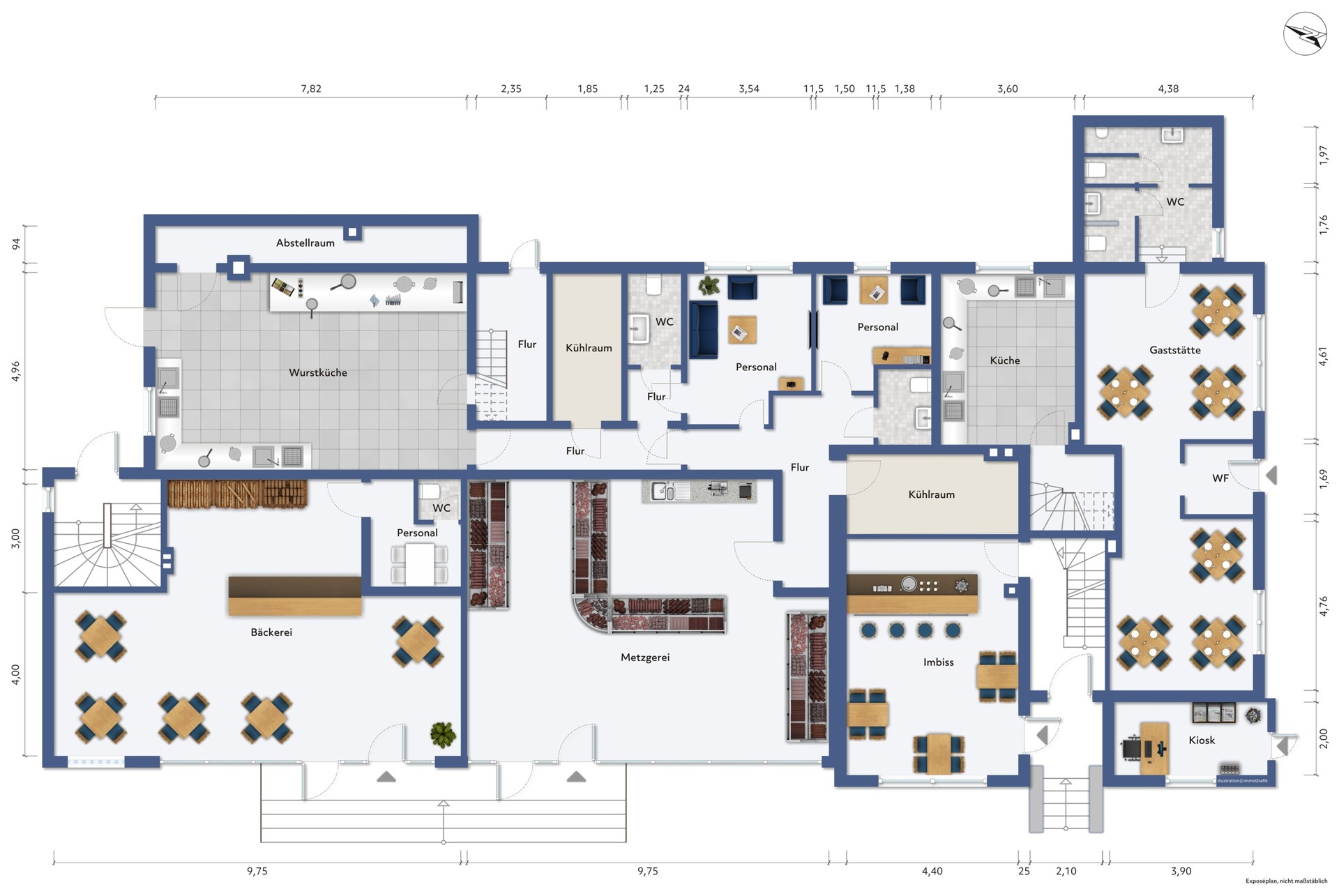
Es handelt sich um 7 Einheiten, diese teilen sich in fünf Gewerbe- und zwei Wohneinheiten auf.
Aufteilung:
Bäckerei, Metzgerei, Kiosk, Gaststätte, Pizzeria und zwei Wohnungen.

Die genaue Aufteilung können Sie dem Grundriss entnehmen.

Ausstattung

Bäckerei (61,09 m)²:
Sie verfügt über einen Verkaufsraum und hat eine kleine Personal-Küche, sowie ein WC.

Metzgerei (177,01m²):
Sie besteht aus einem großen Verkaufsraum, zwei Kühlräumen, zwei Personalküchen, zwei WCs, einer Räucherkammer, einer Wurstküche und einem Flur.
Außerdem werden Kellerräume und ein Teil des Hinterhofs mit Garage genutzt.

Ehemals Pizzeria (36,46m²):
Dieses Ladenlokal, steht zur Zeit leer. Es verfügt über einen Verkaufsraum und einem Personalraum. Es wurde bereits entkernt und bietet verschiedensten Gastronomen eine gute Grundlage für Ihr neues Ladenlokal.

Kiosk:
Der Kiosk besteht aus einer Verkaufsfläche von 8,50 m².

Gaststätte + Monteurwohnung (113 m²):
Das Gasthaus verfügt über einen Biergarten, einen Bewirtschaftungsraum, einem WC mit getrennten Damen und Herren Kabinen, einer Personalküche und einer kleinen Terrasse für das Personal auf dem Hinterhof.

Außerdem gelangt man über die Gaststätte in eine Wohnung, welche zur Zeit als Monteurswohnung angeboten wird. Sie verfügt über zwei Schlafzimmer und einem Badezimmer.

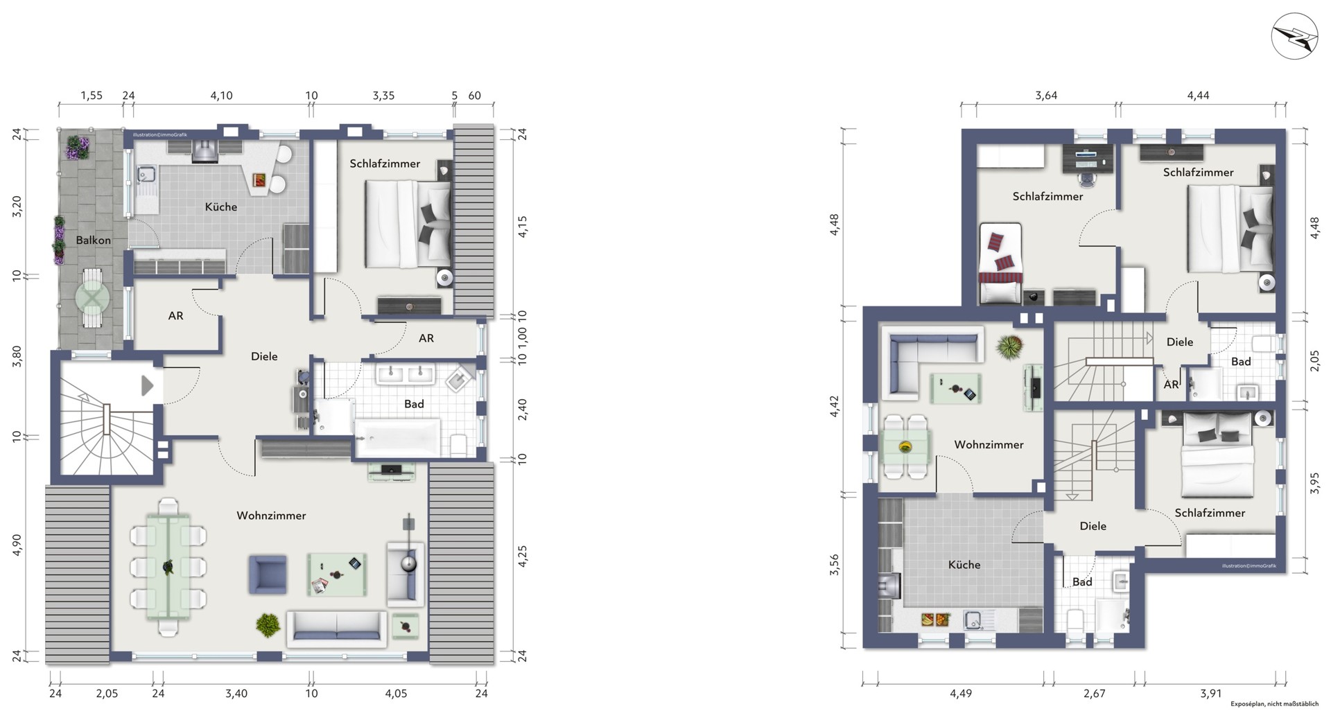
Wohnung 1 (92,40 m²):
Diese Wohnung mit 2,5 Zimmern, teilt sich auf in Wohnzimmer, Schlafzimmer, Küche, Badezimmer, zwei Abstellräumen, Diele und Balkon.

Wohnung 2 (57,34m²):
Diese 60 m² große Wohnung mit 3,5 Zimmern, teilt sich auf in Wohnzimmer, Schlafzimmer, Kinderzimmer, Küche, Badezimmer und Diele. Sie wird vom Pächter der Trinkhalle bewohnt.

Sonstige Informationen

Das Objekt wird mit Öl befeuert.

Die Jahresnettokaltmiete liegt bei einer Vollvermietung bei 96.642 €.

Es liegen keine Mietrückstände vor.

Beide Wohneinheiten, sowie vier der Gewerbeeinheiten sind bereits seit mehreren Jahren vermietet. Lediglich ein Ladenlokal steht zur Zeit leer.

Es ist eine Internet-Geschwindigkeit bis zu 300 MBit/s möglich.

Errichtungshistorie:
1926 - Gebäude Wurstküche hinten, Genehmigung Nutzungsänderung zu Ladenlokal (Gaststätte)
1939 - Errichtung 1.OG über dem Imbiss
1965 - Errichtung Metzgerei und Bäckerei Gebäude einschließlich KG unter der Metzgerei und 1.OG Wohnung
1965 - Umbau zu einer Gastwirtschaft im Teil der Gaststätte
1971 - Leuchtwerbeanlage genehmigt
1977 - Anbau für den Kiosk und Windfang in der Gaststätte
1980 - Umbau und Nutzungsänderung zum Imbiss (leerstehendes Ladenlokal)
1986 - Umbau für Imbiss und Metzgerei genehmigt

Baujahr des Gebäudeteils mit Gaststätte und Monteurswohnung unbekannt, liegt noch vor 1926.

Bitte haben Sie Verständnis dafür, dass wir aus Rücksicht auf die Mieter, nur mit einer Finanzierungszusage Ihrer Bank einen Besichtigungstermin durchführen können. Benötigte Unterlagen stellen wir Ihnen hierbei gerne zur Verfügung.

Lage

Diese Immobilie ist zentral gelegen in Gladbeck-Zweckel.

Die Lage zeichnet sich durch eine hervorragende Infrastruktur und ausgezeichnete Verkehrsanbindungen aus. In unmittelbarer Nähe befinden sich zahlreiche Einkaufsmöglichkeiten, Schulen, Kindergärten sowie medizinische Versorgungseinrichtungen.

Die Anbindung an den öffentlichen Nahverkehr ist optimal: Die Bushaltestelle Beethovenstr. liegt direkt vor der Tür und bietet regelmäßige Verbindungen zum Stadtzentrum von Gladbeck. Ebenso sind die Bahnhöfe Gladbeck-West und Gladbeck-Zweckel in wenigen Minuten mit dem Bus erreichbar, von wo aus Regionalzüge zu den umliegenden Städten wie Essen, Bottrop und Gelsenkirchen fahren.

Für Autofahrer ist die Autobahn A52 nur wenige Autominuten entfernt, wodurch auch eine schnelle Anreise in benachbarte Städte gewährleistet ist.

Die nahegelegenen Grünflächen und Parks, wie der Wittringer Wald oder der Nordpark, sind bequem zu Fuß erreichbar und bieten zahlreiche Möglichkeiten zur Erholung und Freizeitgestaltung.

Bitte akzeptiere Marketing-Cookies um die Google Map zu sehen.

Die dargestellte Position der Immobilie ist nur eine ungefähre Angabe.

Kontaktdaten

Lena Schulte-Zweckel

Immobilien-Bilder

Titelbild
Außenansicht
Außenansicht
Außenansicht
Außenansicht

Grundrisse

Grundriss Erdgeschoss

Grundrisse

Grundriss Obergeschoss
Drucken