Blömker! Großzügige Doppelhaushälfte mit großem Garten, Garage und Stellplatz in Gladbeck Butendorf!

45968 Gladbeck, Doppelhaushälfte zum Kauf

Kontaktdaten

David Belz

Objektdaten

  • Objekt ID
    2937
  • Objekttypen
    Doppelhaushälfte, Haus
  • Adresse
    (Butendorf)
    45968 Gladbeck
  • Etagen im Haus
    2
  • Wohnfläche ca.
    116,69 m²
  • Grund­stück ca.
    680 m²
  • Nutzfläche ca.
    41,30 m²
  • Vermietbare Fläche ca.
    116,69 m²
  • Zimmer
    5,5
  • Schlafzimmer
    3
  • Badezimmer
    2
  • Terrassen
    1
  • Wesentlicher Energieträger
    Gas
  • Baujahr
    1920
  • Zustand
    gepflegt
  • Verfügbar ab
    nach Absprache
  • Stellplätze gesamt
    3
  • Kaufpreis
    315.000 EUR
  • Käufer­provision
    3,57 % inkl. 19 % MwSt. vom Verkaufspreis

Ausstattung / Merkmale

  • Badewanne
  • Dusche
  • Fliesenboden
  • Gartennutzung
  • Kabel-/Sat-TV
  • Kamin
  • Tageslichtbad
  • Teilunterkellert
  • Teppichboden
  • Terrasse
  • Wasch-/Trockenraum

Energieausweis

  • Energieausweistyp
    Bedarfs­ausweis
  • Ausstellungsdatum
    ab dem 1.5.2014
  • Gültig bis
    09.11.2035
  • Gebäudeart
    Wohngebäude
  • Baujahr lt. Energieausweis
    1993
  • Primärenergieträger
    ERDGAS_LEICHT
  • Endenergie­bedarf
    150,20 kWh/(m²·a)
  • Energie­effizienz­klasse
    E
0 25 50 75 100 125 150 175 200 225 250+ H G F E D C B A A+ H G F E D C B A A+ Endenergiebedarf 150,20 kWh/(m²·a)

Objekt­beschreibung

Beschreibung

Dieses Objekt befindet sich in Gladbeck-Butendorf in einer wenig befahrenen Seitenstraße.
Genießen Sie sonnige Stunden in Ihrem großen Garten mit Terrasse!

Aufteilung:

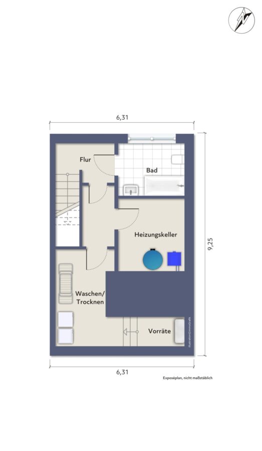
Kellergeschoss:
Badezimmer, Heizungskeller, Waschkeller, Flur.

Erdgeschoss:
Küche, Kamin- und Esszimmer, Wohnzimmer, Diele, Terrasse und Garten.

Obergeschoss:
Schlafzimmer, zwei Kinderzimmer, Badezimmer und Flur.

Dachgeschoss:
Ausgebauter Dachboden.

Die genaue Raumaufteilung können Sie den Grundrissen entnehmen.

Ausstattung

Heizungsart: Gas (Baujahr 1993)
Pufferspeicher vorhanden, über den Kamin angebunden (Prüfung vor Inbetriebnahme erforderlich)
Warmwasseraufbereitung: bei Vollbetrieb über die Heizung, bei Teilbetrieb über Durchlauferhitzer
Weiße Plattenheizkörper

Doppeltverglaste Holzfenster in Braun
Teilweise Außenrollläden
Innentüren in Braun

Bodenbeläge:
Fliesen (Marmor) im Erdgeschoss und Keller, Teppich im Obergeschoss und Dachboden, Fliesen in den Bädern
Badezimmer

Obergeschoss: Bad mit Badewanne, Fenster, WC und Waschbecken
Kellergeschoss: Bad mit Dusche, Fenster, WC und Waschbecken
Sanitärfarbe: Beige (Wand- und Bodenfliesen)

Anschlüsse:
TV: Kabel
Internet: Glasfaser

Sonstige Informationen

Der großzügige Garten verfügt über eine höher gelegene Terrasse, zwei Gartenhäuser und einen kleinen Teich, der zu erholsamen Stunden einlädt.

Vor der Garage sowie in der Hofeinfahrt stehen zwei Stellplatzmöglichkeiten zur Verfügung. Zusätzlich bietet die Garage weiteren Platz für Ihr Fahrzeug.

Das Haus wurde in den 1980er-Jahren umfassend modernisiert und durch einen Anbau erweitert, der 1989 um eine weitere Etage aufgestockt wurde. Die entsprechenden Genehmigungen liegen vor.
Die Hauseingangstür wurde im Jahr 2025 erneuert.

Über unser Exposé haben Sie zudem die Möglichkeit, die Immobilie zunächst in einer umfangreichen virtuellen Besichtigung zu erkunden. Anschließend vereinbaren wir gerne einen persönlichen Besichtigungstermin vor Ort.

Lage

Die angebotene Doppelhaushälfte befindet sich in Gladbeck-Butendorf. Die Lage überzeugt durch eine ausgewogene Mischung aus städtischer Infrastruktur und naturnahem Umfeld. In unmittelbarer Nähe befinden sich Einkaufsmöglichkeiten, Schulen, Kindergärten sowie zahlreiche Freizeit- und Sporteinrichtungen.

Dank der guten Verkehrsanbindung sind die umliegenden Städte des Ruhrgebiets schnell erreichbar. Die Nähe zur Autobahn A2 sowie zu öffentlichen Verkehrsmitteln ermöglicht eine unkomplizierte Anbindung an das Gladbecker Zentrum und weitere Ziele in der Region.

Nahegelegene Parks und Grünflächen bieten ideale Bedingungen für Spaziergänge und entspannte Stunden an der frischen Luft.

Bitte akzeptiere Marketing-Cookies um die Google Map zu sehen.

Die dargestellte Position der Immobilie ist nur eine ungefähre Angabe.

Direktanfrage

 SSL-verschlüsselt