Blömker! Zweifamilienhaus mit tollem Garten und Garage in Bestlage von GLA-Rentfort!

45966 Gladbeck / Gladbeck-Rentfort, Doppelhaushälfte zum Kauf

Kontaktdaten

David Belz

Objektdaten

  • Objekt ID
    4200
  • Objekttypen
    Doppelhaushälfte, Haus
  • Adresse
    45966 Gladbeck / Gladbeck-Rentfort
  • Etagen im Haus
    2
  • Wohnfläche ca.
    121,24 m²
  • Grund­stück ca.
    617 m²
  • Nutzfläche ca.
    71 m²
  • Vermietbare Fläche ca.
    121,24 m²
  • Zimmer
    6
  • Schlafzimmer
    3
  • Badezimmer
    2
  • Terrassen
    2
  • Heizungsart
    Zentralheizung
  • Wesentlicher Energieträger
    Gas
  • Baujahr
    1957
  • Verfügbar ab
    nach Absprache
  • Stellplätze gesamt
    2
  • Kaufpreis
    379.000 EUR
  • Käufer­provision
    3,57 % inkl. 19 % MwSt. vom Verkaufspreis

Ausstattung / Merkmale

  • Fliesenboden
  • Gäste-WC
  • Kabel-/Sat-TV
  • Keller
  • Tageslichtbad
  • Teppichboden
  • Terrasse
  • Wasch-/Trockenraum

Energieausweis

  • Energieausweistyp
    Bedarfs­ausweis
  • Ausstellungsdatum
    ab dem 1.5.2014
  • Gültig bis
    04.09.2035
  • Gebäudeart
    Wohngebäude
  • Baujahr lt. Energieausweis
    2012
  • Primärenergieträger
    Gas
  • Endenergie­bedarf
    363,40 kWh/(m²·a)
  • Energie­effizienz­klasse
    H
0 25 50 75 100 125 150 175 200 225 250+ H G F E D C B A A+ H G F E D C B A A+ Endenergiebedarf 363,40 kWh/(m²·a)

Objekt­beschreibung

Beschreibung

Es handelt sich um ein gepflegtes Zweifamilienhaus mit traumhaftem Garten und Terrasse in Bestlage von Gladbeck-Rentfort. Die Immobilie kann als Zwei- oder Einfamilienhaus genutzt werden. Die Gesamtwohnfläche beträgt ca. 121 m². Ein Stellplatz sowie eine Garage befinden sich neben dem Haus.

Aufteilung:
Erdgeschoss: Wohnbereich, Küche, Schlafzimmer, Kinderzimmer, Flur, Badezimmer und Terrasse.
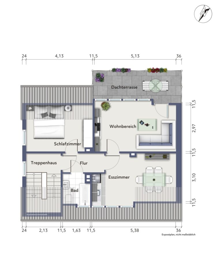
Dachgeschoss: Wohnbereich, Schlafzimmer, Küche inkl. Essbereich, Badezimmer und Dachterrasse.
Kellergeschoss: Werkraum, Heizungskeller, Lagerraum, Abstellraum und Flur.

Die genaue Aufteilung kann den Grundrissen entnommen werden.

Ausstattung

Heizungsart: Gaszentralheizung aus 2012.
Warmwasseraufbereitung über Durchlauferhitzer.

Kunststoff-Fenster mit Doppelverglasung.
Rollläden vorhanden.

Bodenbeläge:
Die Böden sind überwiegend mit Teppich und Fliesen ausgestattet.

Badezimmer:
mit Badewanne, WC, Fenster und Waschbecken. Wandfliesen in gelb und Bodenfliesen in weiß.

Multimediaanschluss: SAT, Kabel, Glasfaser.

Sonstige Informationen

Zur Immobilie gehört eine Garage, die bequem über die hauseigene Zufahrt erreicht werden kann. Zusätzlich bietet die Zufahrt selbst Platz, sodass sie ebenfalls als Stellfläche genutzt werden kann.

Im Garten befindet sich ein praktischer Geräteschuppen, der zusätzlichen Stauraum schafft. Der großzügige und ruhig gelegene Außenbereich lädt zu gemütlichen Grillabenden ein und bietet Kindern zugleich viel Platz zum Spielen.

Über unser Exposé haben Sie die Möglichkeit, die Immobilie zunächst in einer umfassenden virtuellen Besichtigung zu erkunden. Im Anschluss vereinbaren wir gerne einen persönlichen Besichtigungstermin vor Ort.

Lage

Die Immobilie befindet sich im Stadtteil Rentfort in Gladbeck. Die Lage zeichnet sich durch eine ruhige Wohnumgebung bei gleichzeitig guter Anbindung an umliegende Städte wie Essen, Bottrop und Gelsenkirchen aus.

Die Infrastruktur ist gut ausgebaut: Schulen, Kindergärten und Einkaufsmöglichkeiten sind in kurzer Distanz erreichbar. Zudem sorgen öffentliche Verkehrsmittel und nahegelegene Verkehrsknotenpunkte für eine schnelle und flexible Mobilität.

Auch Freizeit- und Erholungsmöglichkeiten sind vorhanden. Parks und Grünflächen in der Umgebung bieten Raum für Spaziergänge und Aktivitäten im Freien.

Insgesamt bietet der Standort eine ausgewogene Kombination aus ruhigem Wohnen und guter Anbindung an das städtische Umfeld.

Bitte akzeptiere Marketing-Cookies um die Google Map zu sehen.

Die dargestellte Position der Immobilie ist nur eine ungefähre Angabe.

Direktanfrage

 SSL-verschlüsselt